Oceana Residence

Pacifica, California | 2006

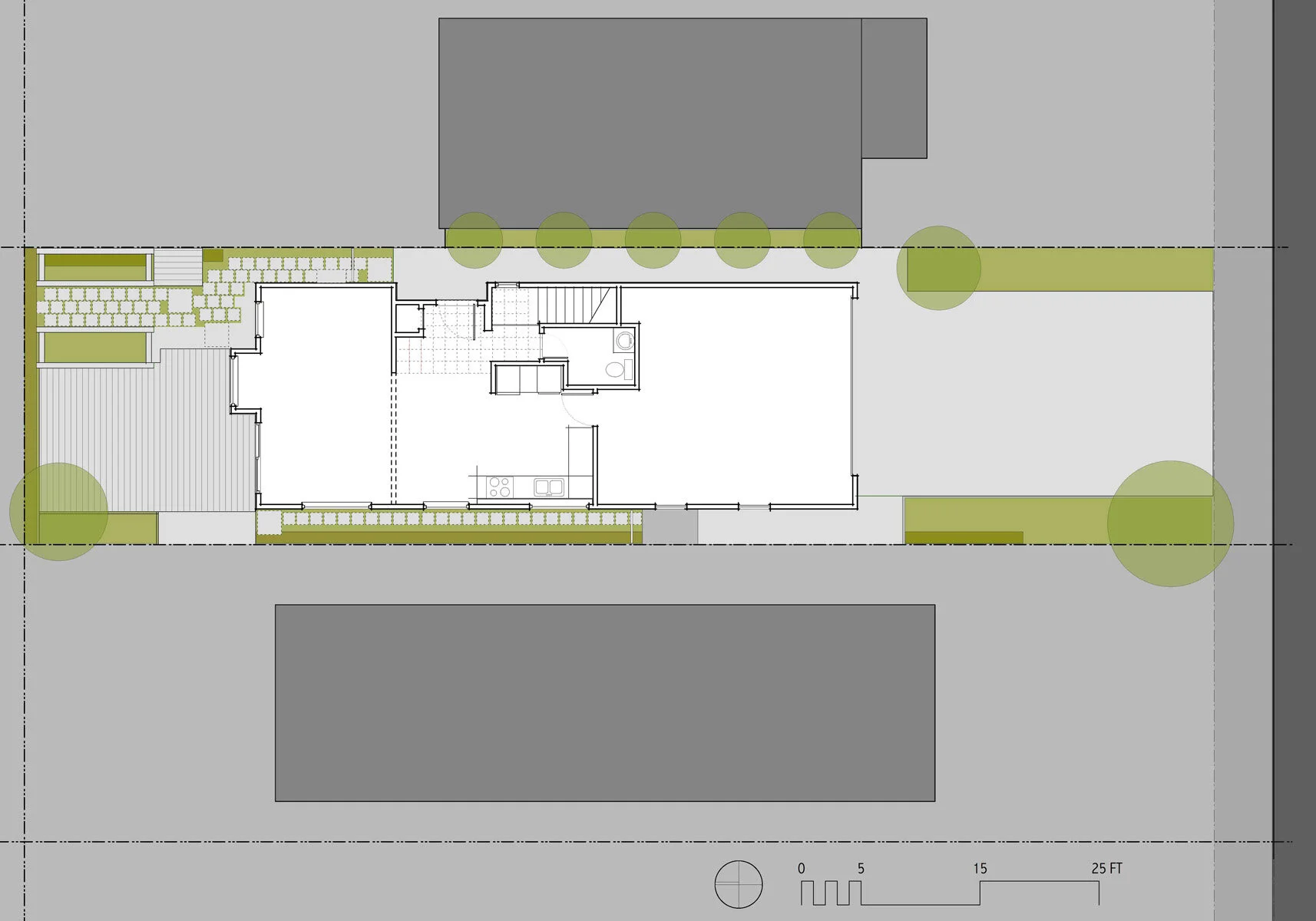
Built in 1985, this house is located within a half block of the Pacific Ocean in the San Francisco Bay Area. The extensive renovation was designed to support seasonal indoor/outdoor living, integrate ocean views, and increase daylighting and natural ventilation. 

Work included a new kitchen, bathrooms, home office, and exterior garden and deck spaces. New natural flooring surfaces, cabinetry, wood trim, an efficient wood stove, and custom tile were installed. Exterior siding, cedar trim, windows, decks, and kitchen garden were also substantially repaired and re-built.

Kina was involved with design aspects for the project, sourcing materials and project management, and on site hammer-in-hand construction for a number of months. 

Previous
Previous

Cultivating Homes : Courtyard Housing

Next
Next

Portland ‘Living Smart’ Design Competition